Проектирование электроснабжения частного дома — это важный этап, от которого зависит не только комфорт, но и безопасность всей электросистемы. Хорошо спроектированная система электроснабжения обеспечивает надежную и эффективную работу всех приборов, исключает аварийные ситуации, такие как короткие замыкания, перегрузки и другие проблемы, которые могут привести к поломке оборудования или даже пожарным происшествиям. На этом этапе важно предусмотреть все особенности будущего дома и правильно рассчитать необходимую мощность, распределение нагрузки и элементы защиты.
1. ПРОЕКТИРОВАНИЕ ЭЛЕКТРИКИ В ЧАСТНОМ ДОМЕ: ОСОБЕННОСТИ
Проектирование электроснабжения частного дома имеет ряд особенностей, которые необходимо учитывать. Первое, что следует сделать — это понимать, что проект будет зависеть от особенностей самого дома, типа его постройки, площади и количества предполагаемых электрических потребителей. Сюда можно отнести как обычные бытовые приборы, так и более сложные системы, такие как кондиционеры, электрические системы отопления или интеллектуальные устройства для дома.
Одной из важнейших задач проектирования является расчет мощности и нагрузки на каждый элемент. Неверный расчет или неправильный выбор сечения кабелей могут привести к перегрузке системы, которая в свою очередь может вызвать короткие замыкания или даже пожар. Таким образом, правильное проектирование является залогом безопасности эксплуатации электрооборудования в доме.
Процесс проектирования электроснабжения должен учитывать не только текущие потребности владельцев, но и возможное расширение системы в будущем. Мало ли что может понадобиться через несколько лет, и важно заранее предусмотреть места для новых розеток, осветительных приборов или подключений для новых устройств.
2. СОДЕРЖАНИЕ ПРОЕКТА ЭЛЕКТРОСНАБЖЕНИЯ
Проект электроснабжения частного дома включает в себя несколько составляющих частей, которые учитывают особенности объекта, требования заказчика в части используемого электрооборудования и систем, расчет системы, отвечающей нормам безопасности, указания для монтажных работ и подключения.
Обычно его содержание состоит из:
- технического задания;
- пояснительной записки;
- расчетной части;
- планов сетей и схемы подключения;
- выбора электрооборудования;
- указания по монтажу (рабочая документация);
- сметы (расходной части).
Рассмотрим подробнее наиболее важные части проекта электроснабжения.
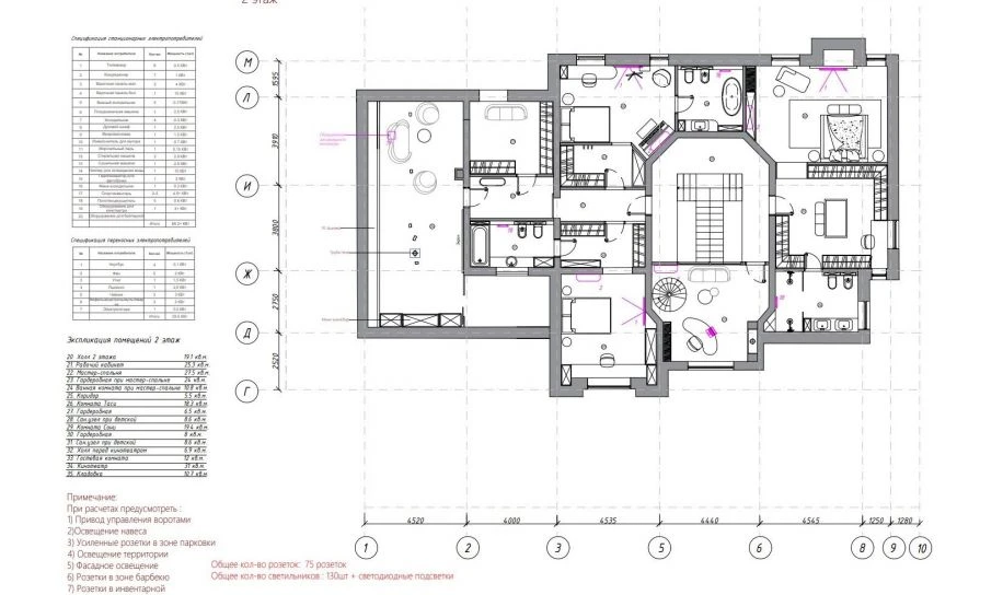
2.1 ПЛАН ЭЛЕКТРИКИ ЧАСТНОГО ДОМА
План электроснабжения — это документ, который включает в себя описание всех необходимых элементов системы электроснабжения в частном доме и относящихся к нему жилых и нежилых помещениях.
Типовой план электроснабжения включает в себя:
- Указание мест ввода силовых кабелей электроснабжения в дом, щитового оборудования, приборов учета, шкафов управления;
- Проектирование сетей для источников питания и потребителей в жилых и нежилых помещениях (гараж, гостевой дом и т.д.).
- Организацию аварийного питания с помощью генераторов.
- Организацию подключения противопожарного оборудования, охранных систем.
- Организацию контура заземления, молниезащиты, регуляции напряжения.
Этот план согласовывается с энергоснабжающей организацией, архитектором, дизайнером проекта, бригадой строителей-отделочников и другими специалистами, чтобы избежать необходимости в изменениях по мере выполнения работ.
2.2 РАСЧЕТЫ ЭЛЕКТРООБОРУДОВАНИЯ
Один из ключевых этапов в проектировании — это расчеты электрооборудования. Они включают в себя подбор кабелей, автоматов, предохранителей, устройств контроля и защиты и других элементов, необходимых для обеспечения безопасности и нормальной работы системы электроснабжения исходя из выделенной мощности.
Основной задачей расчетов является определение мощности, которую потребляют все приборы в доме. Это важно для того, чтобы правильно выбрать сечение проводов и номиналы автоматов. Для этого необходимо провести расчет всей нагрузки на систему, исходя из того, какие устройства будут подключены и каковы их параметры.
Для решения этой задачи специалисты выполняют расчеты:
- установленной мощности и выделенной мощности
- коэффициента спроса, мощности и использования
- числа фаз и расчет показателя тока в электрической цепи
- токов замыкания и выбор защитного оборудования
- категории надежности электроснабжения и т.д.
2.3 СХЕМЫ ПОДКЛЮЧЕНИЯ ЭЛЕКТРИКИ
Одним из основных элементов проекта является схема подключения. Такая схема включает в себя все элементы от распределительных щитов до отдельных точек подключения, а также показывает сечение проводов и устройства защиты, такие как автоматические выключатели, УЗО, дифференциальные реле и другое оборудование.
Проекция схемы должна быть разработана таким образом, чтобы монтаж проводки был понятным, удобным и безопасным, а также чтобы в случае возникновения неисправностей можно было быстро определить и локализовать проблему.
Схема подключения электроснабжения частного дома должна также учитывать следующие моменты:
- Разделение системы на несколько групп (освещение, розетки, крупные бытовые приборы, системы отопления, теплого пола, система вентиляции и т.д.);
- Указание типов кабелей и проводов, а также их сечений;
- Подключение наружных источников питания, например, для освещения территории, видеонаблюдения ;
- Места прокладки силовых и слаботочных кабелей, подрозетников снаружи дома, в стенах, стяжке пола;
- Указания по монтажу оборудования (рабочая документация).
2.4 СМЕТА НА ЭЛЕКТРИКУ
Проект электроснабжения не будет полным без сметы, которая описывает все расходы, связанные с закупкой материалов, монтажом и установкой системы электроснабжения. Хотелось бы отметить, что далеко не все проектирующие организации включают данную часть в проект.
В смету входит:
- Стоимость кабелей, проводов, щитового оборудования, коробок, реле, кабеленесущих систем, соединительных клемм, подрозетников, розеток и выключателей;
- Работы по монтажу, включая прокладку проводки, установку оборудования и тестирование системы;
- Расходы на дополнительное оборудование, такое как системы защиты и автоматики
- Подключение приборов освещения, вентиляции, розеток, противопожарного оборудования, шкафов управления и т.д.
Проектирование электроснабжения требует внимательности и профессионализма, и правильное составление сметы позволяет избежать непредвиденных расходов и обеспечить прозрачность всех работ.
2.5 СОГЛАСОВАНИЕ И МОНТАЖ
На начальном этапе при подключении участка к энергоснабжению нужно заключить договор с сетевой организацией, выполнить необходимые работы по подключению и получить акт о присоединении. Проект энергоснабжения будет полезен на данном этапе, так как в нем есть план энергопринимающих устройств с их точным местоположением в границах участка, мощностью и другими параметрами. По мере прокладки линий сетей до вводного устройства с приборами учета потребуется согласование от инспектора энергосбытовой организации для подписания самого акта. Здесь проект также может быть полезен, так как в нем указан план автоматики щита с необходимыми номиналами в соответствии с Правилами Устройства Электроустановок (ПУЭ) и другими нормативными актами. Некоторые проектирующие организации подготавливают ТУ (Технические условия) о присоединении.
После получения документов и фактического подключения можно переходить к этапу монтажа проводки в частном доме. Важно, чтобы монтажные работы выполнялись квалифицированными специалистами, которые имеют соответствующие лицензии и опыт. Все действия должны проводиться в соответствии с ПУЭ, СНиП и правилами техники безопасности. На этом этапе происходит прокладка кабелей, установка оборудования, монтаж распределительных щитов и подключение элементов системы к источникам питания.
3. СТОИМОСТЬ ПРОЕКТА ЭЛЕКТРИКИ ЧАСТНОГО ДОМА
Стоимость проекта электроснабжения частного дома может варьироваться в зависимости от множества факторов, таких как площадь дома, его расположение, выбранные материалы, широкий перечень систем и потребителей, а также сложность выполнения работ.
Кроме того, на цену может влиять формирование проекта электроснабжения без сметной части или рабочей документации. В других случаях часть проектных работ может быть уже выполнена в разделах дизайн-проекта, что потенциально может уменьшить стоимость проектирования. Иногда к проекту добавляется необходимость разработки новых разделов из-за дополнительных строений, находящихся на территории участка или высоких требованиях к электроснабжению, что, напротив, увеличивает стоимость.
Подводя итоги можно отметить, что проектирование электроснабжения частного дома — это важный этап, который влияет на безопасность, комфорт и долговечность эксплуатации всей электросистемы частного дома. Правильно выполненный проект позволит избежать множества проблем как на этапе строительства, так и во время проживания, а главное - обеспечит стабильную и безопасную работу всех электроприборов в доме.











«Такую схему всегда проще разработать на стадии проектирования и следовать ей, чем корректировать ее после того, как дом уже построен, коммуникации проложены и выполнен чистовой ремонт»
- ГЕНЕРАЛЬНЫЙ ДИРЕКТОР КОМПАНИИ “KAPITALNO” ДЕНИС РЕЗИНОВ